 鲜花( 0)  鸡蛋( 0)
|
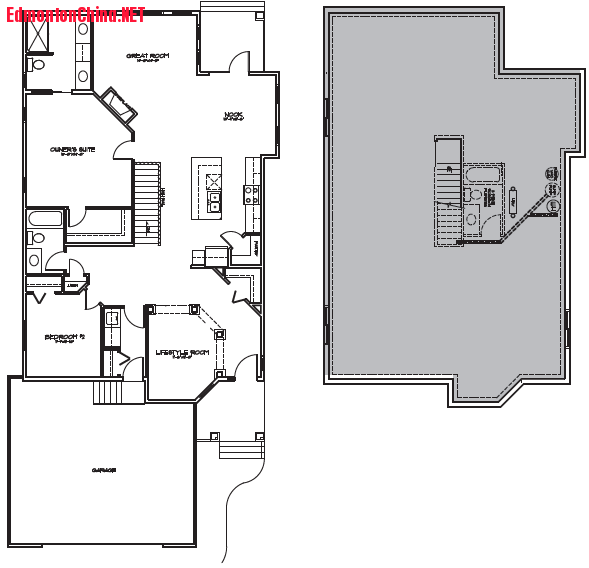
Granville 西区全新平房 Bungalow,1525平方呎(142平方米),$568,502含税
% T5 ~. c5 p7 B0 X J* M2 x9 J/ i8 \5 m

- 全新平房(bungalow)
) O& E( g7 _4 K: K7 l' a
- 2卧室
8 z) \1 W- k6 T, ~: p+ x& W( q) g
- 2卫生间
8 F1 F/ [ @, j0 g
- 10呎天花2 j$ d, ?; v q* D% ^4 c# s1 u
- 加宽双车库,车道
2 q# G: o K& x+ {5 M" J9 V! B- 3层玻璃窗
/ n1 Y( w# b8 Z0 r" X) ?; a- HRV (Heat Recovery Ventaliator)! J+ U0 }, x8 S3 o' |$ G
- 石英台面
4 X. T# f. M8 l* `" U$ H- 主卧卫生间双水槽* f; I+ ^5 k2 ^, Z
- 后院向东北,面向西南
$ s Z" L. C" I3 d9 k$ M* n- 预期 2017年2月完工
- E3 B" O, M6 O2 M! R9 X6 R- `8 y6 A6 Z( b* Q" F
全新建筑保证:
6 j" D2 s! D0 r A X; T2 c- V
1年 做工保证

/ f4 ~1 D7 p/ z! G1 r+ q6 ~2年 暖气及热水炉保证! k- W: M: F8 ^

5年 地质保证
) P( L7 |5 t9 k" x/ |1 j! g- Z
10年 建筑结构保证
2 j% D) O* p" G: @1 [/ s# N3 i
* I) b# v& |: Y+ T N4 |地理位置:
' l9 h1 A! [3 F9 `) r/ u7 }) w西区Granville
( }# K: \) E3 s! L1 `
邻近Costco, West Edmonton Mall8 S- r% { r( [
邻近 Bessie Nichols School
4 P3 T; e5 k7 N P8 |周边有公园和人行步道

- G) R: u2 s4 t" M/ v9 {4 h9 ]3 u% r9 r( {; ?
爱城31区域新房,房型包括独立房(Single front attached),独立分离车库房(Laned home),双连房(Duplex)和联排式房(Town home);现房或定制房,一千呎到三千呎。我们可以帮您寻找或订制最理想的居住空间或投资。
/ d! ~7 o7 d1 d% v$ L% r2 A5 f/ N3 D" j4 _0 N/ l7 L
有意参观或索取更多资讯请联系 Jason 780-707-1820 (微信:jasongong81) |
|