 鲜花( 4)  鸡蛋( 0)
|
地址:19019 20 AV NW
- Z8 A( s$ D) Q5 n- l0 ?( F
; q) x/ ?7 u7 l1 P- t# T售价:$614,900
( N* `, @- {* A# ]* L" ]* m
* R2 p+ J0 Q2 j. \联系方式:老杨团队
5 W3 R, G2 e c% e! {3 g: K7 [1 k/ U' f. ]. r% {# s
(http://www.fanyangteam.com)8 n: u$ p9 y& j- \/ g
. r3 C) M! G' [( D: i, L4 F F
& }5 T+ i7 O. E# J$ J
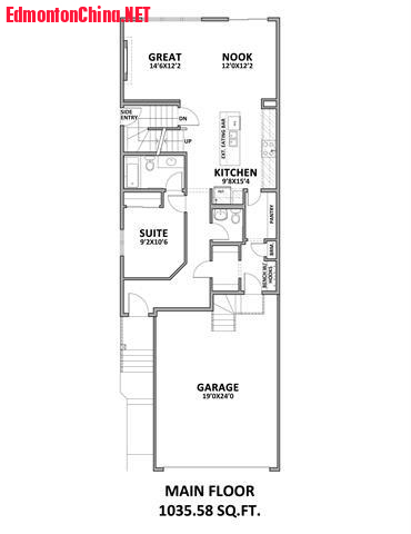
- x4 Z U! X! b2 ~) P欢迎来到由Look Master Builder精心打造的Paragon住宅!2025年全新落成,4卧3.5卫浴双层美墅,坐落在一处安静的钥匙圈!
% x7 \( J# u+ x& V7 E* |2 ^% e" S- l6 e# k
主层开放式布局,设有1间卧室,并配有独立卫浴;宽敞美食安装了饭岛、全高防溅挡板、温馨壁炉;带鞋凳和衣挂的步入式盥洗室,可直通食品储藏室。+ b% @. [, l% n
3 z ?1 B1 o, E# T, P5 D
二楼设有明亮的居家客厅、便利洗衣房、两间宜居卧室!令人惊艳的主卧套房,仰头可见艺术天花板,豪华的五5pc卫浴间设有双洗手池和独立浴缸。
/ l- o3 O; l/ o: ~6 y
0 C- @& L5 d! M" A9 n地下室设有独立侧门入口、9尺高的地基墙、两扇明亮大窗采光充沛,并预留了浴室、吧台、洗衣房、第二台锅炉、抽油烟机和烘干机排气管道的管道接口……未来可落成一套独立套间!2 @8 Q; ?1 D2 h/ h$ w
5 M+ Q' ^* ]+ s% A/ \) C/ y4 J全屋配备了百叶窗,可享5000加元家电补贴,并配有白杨木栏杆和节能三层玻璃窗。超大车库,安心停放!1 t0 w1 j9 ]; ]9 Y0 Y& I2 Y
+ }( m( [" Z* R; w% j
万事俱备,欢迎看房!
" n* h/ f) h+ h1 w3 U- l" r9 O7 }% v. B
Welcome to the Paragon by Look Master Builder — a stylish 4-bed, 3.5-bath two-storey home on a quiet cul-de-sac with a MAIN FLOOR BEDROOM & ENSUITE. Main floor features include an oversized garage, open-concept layout, large kitchen island, full-height backsplash, cozy fireplace, and a walkthrough mudroom with bench and hooks leading to the pantry. ' G7 d+ u4 _5 K
6 s2 F: x* c% M6 @, O. @+ r: K: Y8 vUpstairs offers a bright bonus room, laundry, two additional bedrooms, and a stunning primary suite with vaulted ceilings and a luxurious 5-piece ensuite featuring dual sinks and a free-standing tub. The basement has a separate side entrance, 9’ foundation walls, two windows, and rough-ins for bath, wet bar, laundry, 2nd furnace, hood fan, and dryer vent. Enjoy combi BLINDS throughout, a $5,000 appliance credit, poplar railings, and energy-efficient triple-pane windows. Quick possession available!
. j/ T# ~, M# [. a
& @% F5 `+ F8 i' Y/ c' _ 7 n+ U5 i8 X1 d# D) b; C8 N
3 @! R. J6 ?. h( D8 ]

) r; Z9 a, U% G+ o& n! z
3 A! Q, [5 Q+ D- C' X8 Z : F/ D. l8 J& q& V& o& x
: a3 H* U% `5 A! e5 B$ R
5 f E$ x( k0 r( G4 ?9 z7 _, ? b

; N, E4 [/ r- o* Q! x$ |8 R9 q
$ t& A8 U/ O4 B( ]" Y- V2 p- ?
) v. P& A2 ^3 C; S
; h( R2 q) s$ n! Q, x
7 [& S) F5 o/ P0 G" v
! n7 j6 B. C4 k; T: Y* r% W! u
/ Y! M% S, I4 g. t * T$ c# W% L! ~' p- A r

" H, V; C n4 X: F) m 7 V& {# m0 b9 F2 Y4 O
- P' I3 X) A% y$ E! L( b

) D( M! P; o) |4 a9 c; u) i! p % q$ o- N8 \0 d+ Q5 x
) s* @- g& @0 {& [- d" Y
+ r. y8 b6 @2 G+ H1 p- t( n& C+ U) k

/ a$ g* s( T9 v+ F
* m( V e) P/ ?
6 n1 e' t. Y$ h1 K& D! g
K: K5 U- E c6 v ) l a" O6 ?0 b% ]" B8 O) s
/ y& a N6 Z- N& e- A2 X( B

5 [0 V0 i+ w! E' l1 z0 F1 l
' K& T+ [3 | z* w
8 G3 c+ n* u' c/ H: G/ ] + N2 m9 z( H- s" o3 c7 r

, W$ k7 j) B( M; [ 4 i: k$ b/ _" ^: {

$ ]; q' i; |9 [8 A
, K5 `1 c0 @- l1 j( j
6 [$ _8 R! L5 X# H$ T
5 O }$ p F7 z; c
; z0 _) C' j" t) Q9 _8 d7 y
" y" c6 i7 m, i7 P! z 7 |9 R6 { m5 v# ~7 ]9 k
|
|