埃德蒙顿华人社区-Edmonton China

 找回密码
 注册
查看: 1827|回复: 7

自卖全新的位于西南区两房一厅的CONDO,$169000

[复制链接]
鲜花(137) 鸡蛋(0)
发表于 2016-4-17 09:26 | 显示全部楼层 |阅读模式
老杨团队,追求完美;客户至上,服务到位!
本帖最后由 kijiji 于 2016-4-17 09:32 编辑
2 w0 B& L6 ~) K! o6 \3 L$ v; x& d+ b
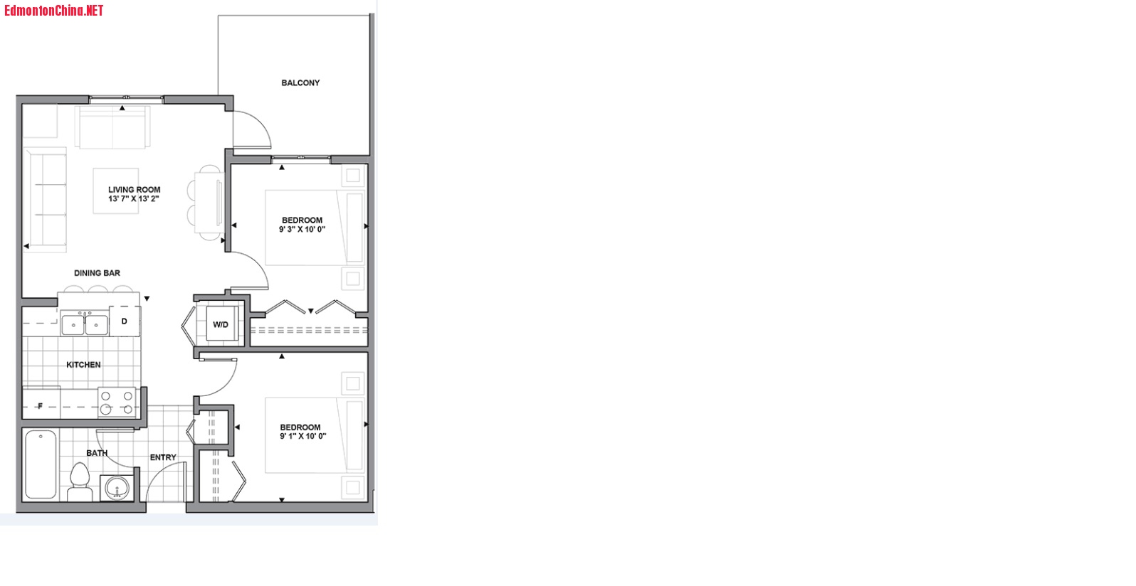
* H0 F; I2 u" k; k2 C' W自卖全新位于西南区两房一厅位于二楼的CONDO(共四层),2016年05月入住,面积615尺,发展商提供5年质量保证/包修,送五件套全新家电,室内装修升级,带一个地上停车位,售价16万9千加币,管理费$209/月,送一年电视电话网络服务($1200+),地址:5816 MULLEN PLACE NW (ANTHONY HENDAY & RABBIT HILL交界),详情请电780-680-1338。
1.jpg
2.jpg
3.jpg
4.jpg
5.jpg
鲜花(137) 鸡蛋(0)
 楼主| 发表于 2016-4-24 11:50 | 显示全部楼层
upupup
大型搬家
鲜花(10) 鸡蛋(0)
发表于 2016-4-24 19:57 | 显示全部楼层
留下出租应该还是有现金流吧。
鲜花(137) 鸡蛋(0)
 楼主| 发表于 2016-4-24 22:35 | 显示全部楼层
老杨团队 追求完美
是的, 租金可以租到1100到1200。
鲜花(137) 鸡蛋(0)
 楼主| 发表于 2016-5-11 13:05 | 显示全部楼层
收楼日期是5月31日.
鲜花(646) 鸡蛋(0)
发表于 2016-5-21 22:45 | 显示全部楼层
自卖全新的位于西南区两房一厅的CONDO,$169000
鲜花(137) 鸡蛋(0)
 楼主| 发表于 2016-6-2 16:15 | 显示全部楼层
老杨团队,追求完美;客户至上,服务到位!
已经收楼拉,有意可以随时看房子。
鲜花(137) 鸡蛋(0)
 楼主| 发表于 2016-6-14 08:54 | 显示全部楼层
本周日OPEN HOUSE,欢迎参观
您需要登录后才可以回帖 登录 | 注册

本版积分规则

联系我们|小黑屋|手机版|Archiver|埃德蒙顿中文网

GMT-7, 2025-10-10 04:44 , Processed in 0.187572 second(s), 13 queries , Gzip On, APC On.

Powered by Discuz! X3.4

Copyright © 2001-2021, Tencent Cloud.

快速回复 返回顶部 返回列表